
Kommande
PRIS: 1 850 000 SEK (grund inkluderat)
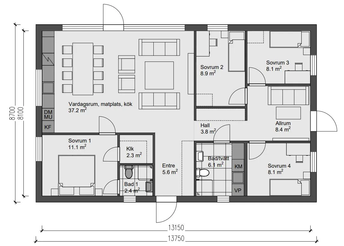
TYP: 1 plan
BYA: 120 kvm
BOA: 106 kvm
RUM: 6

Detta rymliga enplanshus på 106 kvm erbjuder en genomtänkt planlösning med öppen yta för vardagsrum, matplats och kök på hela 37 m² – perfekt för sociala tillfällen och familjeliv. Huset har fyra sovrum, två badrum, ett praktiskt allrum samt klädkammare och tvättstuga med egen entré. En modern och funktionell bostad för familjen som vill ha gott om plats att umgås och trivas.
Badrum med klinker 60*60 på golv och vägg.
Inredning IKEA.
Golv, tak och golv lister, foder i trä.
Vitasläta dörrar med svarta handtag.
Väggar – vitmålat.
Tak – takpaneler.
Ikea kök i minimalistisk stil.
Kök & vardagsrum med öppen planlösning



























