
Kommande
PRIS: 1 650 000 SEK (grund inkluderat)
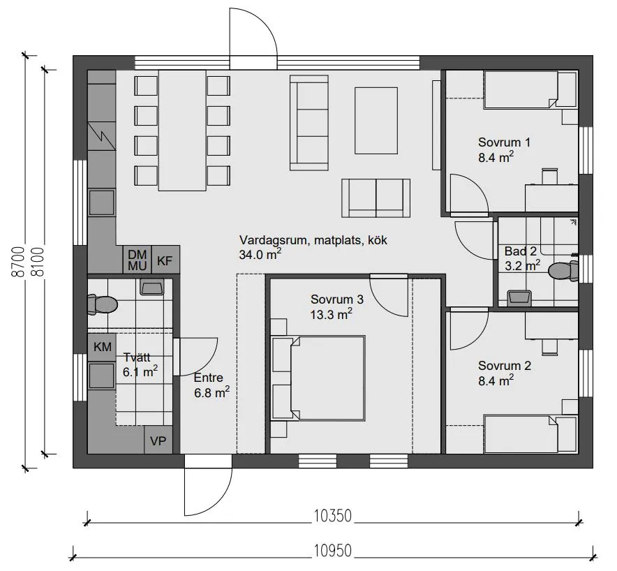
TYP: 1 plan
BYA: 95 kvm
BOA: 83 kvm
RUM: 4

Detta moderna enplanshus på 83 kvm erbjuder en öppen och ljus planlösning med kombinerat vardagsrum, matplats och kök på hela 34 kvm. Hemmet rymmer tre välplanerade sovrum, två badrum. Med en smart layout och effektiva ytor passar huset både för familjen och för dig som vill bo bekvämt i ett lättskött hem.
Badrum med klinker 60*60 på golv och vägg.
Inredning IKEA.
Golv, tak och golv lister, foder i trä.
Vitasläta dörrar med svarta handtag.
Väggar – vitmålat.
Tak – takpaneler.
Ikea kök i minimalistisk stil.
Kök & vardagsrum med öppen planlösning



























